€10,000 /month
Petrou & Pavlou Limassol
Office Long Term
- Bedrooms
470m² Covered
- Plot

Office FOR RENT
in Limassol, Petrou & Pavlou
REF. NO. 45071AA

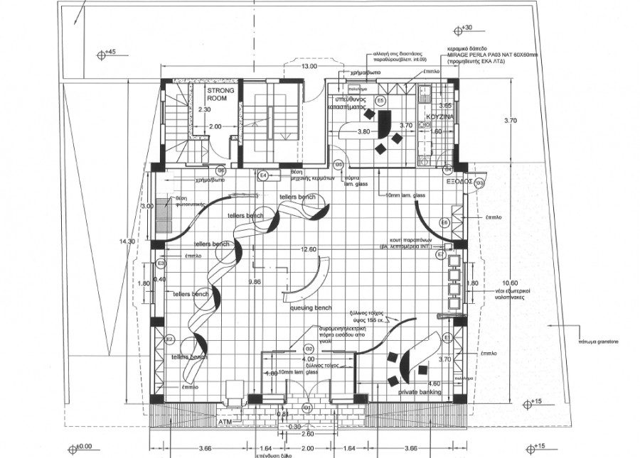
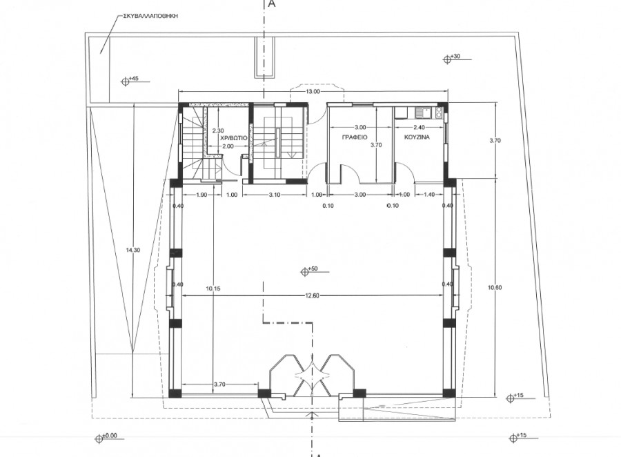
Available in one of Limassol’s most central and convenient locations, this detached office building offers a total of 470 sqm of internal covered space across two floors.

The property features a flexible open-plan layout on both floors, with a separate office room and a dedicated kitchenette, providing both functionality and comfort for a growing business. Equipped with raised floors and full air-conditioning, it ensures a modern and efficient working environment.

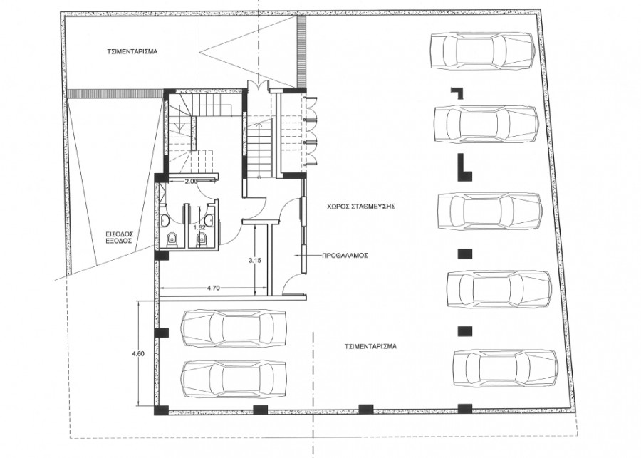
A rare advantage of this building is the allocation of 10 private parking spaces, with underground parking that accommodates at least 7 cars and more, plus additional uncovered spaces outside the building - making it highly convenient for staff and clients alike.

There is also access to the roof, which could be transformed into a roof garden with some work, offering extra space for staff breaks or company events. While the interior may benefit from light renovation or modernization, the property overall is in very good condition.

An excellent choice for companies seeking a central office base with ample parking in Petrou & Pavlou.

Air Conditioning
Beach: 5 min Drive
Below Limassol highway
Close to the marina
Guest toilet
Mountain views
Plus VAT
Private Parking (covered)
Private parking (uncovered)
Roof garden
Separate Kitchen
Storage room
Town: Walking distance
VIEW LOCATION MAP
THIS WEBSITE IS USING COOKIES
We use cookies to ensure that we give you the best experience on our website. If you continue using the site we assume that you are happy to receive all cookies on this site. Please make sure to read our cookies policy.