€259,000 For Sale
Kato Polemidia Limassol
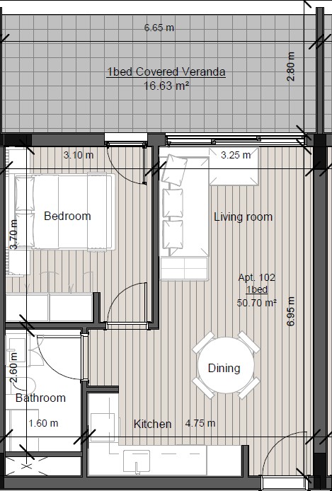
Apartment Off-Plan
1 Bedrooms
68m² Covered
- Plot

Apartment FOR SALE
in Limassol, Kato Polemidia
REF. NO. 47899

Located in a peaceful yet well-connected area of Limassol, modern residential development comprising four distinctive blocks and a curated selection of 1, 2, and 3-bedroom apartments. Designed with a focus on contemporary architecture, efficient layouts, and everyday livability, the project offers a refined residential experience suited to a variety of lifestyles. Set within a growing neighborhood, project provides residents with convenient access to key road networks, educational institutions, local shops, and essential services. Its strategic location ensures seamless connectivity to Limassol’s city center and coastline, while maintaining a sense of calm and residential privacy. Each apartment is thoughtfully planned to maximize space, natural light, and functionality, creating comfortable homes that meet modern expectations. With its balanced combination of accessibility, design quality, and tranquil surroundings, project presents an excellent opportunity for both homeowners and investors seeking long-term value in Limassol.

Barbeque Area
Beach: 10 min drive
Communal parking (covered)
Communal swimming pool
Elevator
Energy Class A
Fire place
Gated Community
Gym
Master Bedroom
Mountain views
Open Kitchen
Plus VAT
Sea views
Security Alarm
Energy Class A
A+
A
B
C
D
VIEW LOCATION MAP
THIS WEBSITE IS USING COOKIES
We use cookies to ensure that we give you the best experience on our website. If you continue using the site we assume that you are happy to receive all cookies on this site. Please make sure to read our cookies policy.