€259,000 For Sale
Katholiki Limassol
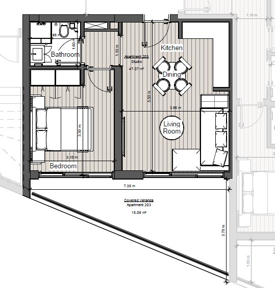
Apartment Off-Plan
1 Bedrooms
59m² Covered
- Plot

Apartment FOR SALE
in Limassol, Katholiki
REF. NO. 47024

Contemporary residential development defined by clarity of design, precision in detail, and quality in execution. The project comprises a limited collection of well-proportioned one-, two-, and three-bedroom apartments, along with exclusive penthouse residences, each conceived to meet the demands of modern urban living.

Characterised by clean architectural lines, carefully selected materials, and functional interior layouts, project delivers a harmonious balance between aesthetics and practicality. Positioned in a prime residential location with immediate access to key amenities and city infrastructure, the development represents a considered investment opportunity and a distinctive place to live within Cyprus’s evolving real estate landscape.

Delivery - March 2029

Barbeque Area
Elevator
Energy Class A
Master Bedroom
Mountain views
Open Kitchen
Panoramic Views
Plus VAT
Private Parking (covered)
Sea views
Security Alarm
Storage room
Energy Class A
A+
A
B
C
D
VIEW LOCATION MAP
THIS WEBSITE IS USING COOKIES
We use cookies to ensure that we give you the best experience on our website. If you continue using the site we assume that you are happy to receive all cookies on this site. Please make sure to read our cookies policy.