Detached Villa - Ref. No. 47473
For Sale €800,000
€800,000 For Sale
Geroskipou Paphos
Detached Villa Off-Plan
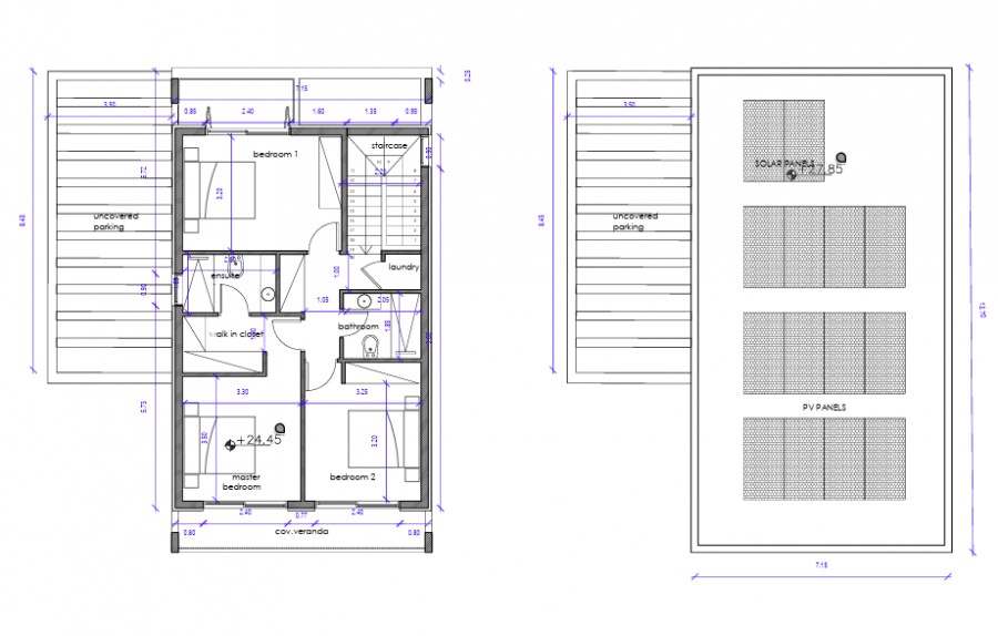
3 Bedrooms
- Covered
265m² Plot


Property Features

Barbeque Area
Energy Class A
Master Bedroom
Open Kitchen
Panoramic Views
Photovoltaic System
Plus VAT
Private Parking (covered)
Private swimming pool
Storage room
Underfloor heating


Description

Modern villa development of 15 luxury villas, located in the Geroskipou Tourist Area in Paphos, just 200 meters from the beach. The project is designed for clients seeking a modern coastal lifestyle that combines privacy, comfort, and contemporary design within walking distance of the sea.

It offers residents the opportunity to enjoy the Mediterranean lifestyle at its finest. With the beach only moments away and nearby access to restaurants, cafes, hotels, and amenities, the development blends relaxed coastal living with everyday convenience.

Each villa has been thoughtfully designed to provide spacious interiors and seamless indoor-outdoor living, allowing residents to enjoy Cyprus’ sunny climate throughout the year.

Large openings, modern materials, and carefully planned layouts ensure bright interiors and a comfortable atmosphere, while private outdoor areas provide the perfect setting for relaxation and entertainment.

Delivery- 24 months